FUN
Schnee
www.defi-vacances.fr Code Promo : CM14
Ihre Favoriten

Die Favoriten entsprechen den Ferienhäusern, die Sie in Ihre Favoritenliste aufnehmen.
Um weitere hinzuzufügen, klicken Sie auf den grauen Cœur in der oberen rechten Ecke der Vermietungen.
Um sie zu entfernen, klicke erneut auf den Cœur desselben Ortes, der dann orange ist.

Schließen

Vermietung Ferienwohnung in einer Wohnanlage Caseblanche

  • 141 m2

  • 10 Personen

  • 25/01/2026

Über

Der Weiler Caseblanche ist ein neuer Bau von hochwertigen Chalets mit direktem Zugang zur Piste und 50 m von der Gondel Saint Martin entfernt (direkter Zugang zum Skigebiet der 3 Täler).
Der Wanderweg Notre Dame de la Vie führt durch den Weiler.
Es gibt ein Sportgeschäft, einen Lebensmittelladen mit frischem Brot am Morgen und eine Bergbrasserie. Eine Ladestation für Elektroautos ist vorhanden. Concierge-Dienste.

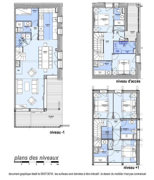
BOUC BLANC ist ein komfortables Chalet von 140 m² auf 3 Ebenen, mit einer raffinierten Einrichtung, die 12 Personen beherbergen kann.
Geräumig, mit mehreren Schlafzimmern mit eigenem Bad, einer Sauna, einer großen Terrasse und einem 40 m² großen Garten, bietet es Ihnen einen traumhaften Rahmen für Ihren Urlaub.

STUFE -1 :
Voll ausgestattete Küche: Geschirrspüler, Backofen, Mikrowellenherd, Induktionskochfeld, Wasserkocher, Toaster und Kaffeemaschine.
Schönes Wohnzimmer mit Blick auf die Terrasse.
Helles und gemütliches Wohnzimmer mit Fernseher.
Kabine ohne Fenster: 2 Etagenbetten (90x190).
Badezimmer mit Dusche und Toilette.
Eingerichtete Waschküche mit Waschmaschine und Trockner.

STUFE 0 :
Schlafzimmer 1 mit Bad: 2 Einzelbetten (80x200), Dusche und WC.
Schlafzimmer 2 mit Bad: 2 Einzelbetten (80x200), Bad und Toilette.
Skiraum am Eingang.

STUFE 1 :
Schlafzimmer 3 mit TV: 2 Einzelbetten (80x200).
Schlafzimmer 4 mit TV: 2 Einzelbetten (80x200).
Schlafzimmer 5 en suite: 2 Einzelbetten (80x200), Bad und Toilette.
Sauna.
Separates Duschbad mit Dusche und Toilette.

Inklusive Dienstleistungen:
1 überdachter Parkplatz inklusive. WIFI.
Im Winter: Die Betten sind bei Ankunft bezogen, Handtücher, Geschirrtücher und Badematten.

Sonstiges :
Nicht-Raucher-Chalet.
Haustiere sind nicht erlaubt.
Concierge-Dienst.

Ergebnisse laden

Tarife & Planung dieser Vermietung

(Datum der letzten Aktualisierung : 25/01/2026)

Frei

Nicht verfügbar

Last-Minute-Angebot

Maart
2026
Mo Mar Meer Spiel Fr Sam Dim
23 24 25 26 27 28
1
2
3
4
5
6
7
8
9
10
11
12
13
14
15
16
17
18
19
20
21
22
23
24
25
26
27
28
29
30
31
1 2 3 4 5
April
2026
Mo Mar Meer Spiel Fr Sam Dim
30 31
1
2
3
4
5
6
7
8
9
10
11
12
13
14
15
16
17
18
19
20
21
22
23
24
25
26
27
28
29
30
1 2 3
Mei
2026
Mo Mar Meer Spiel Fr Sam Dim
27 28 29 30
1
2
3
4
5
6
7
8
9
10
11
12
13
14
15
16
17
18
19
20
21
22
23
24
25
26
27
28
29
30
31

Zusätzliche Informationen

Abreisezeit am Ende des Aufenthalts : 10h00

Ankunftszeit zu Beginn des Aufenthalts : 17h00

Prozentsatz der Anzahlung oder Vorauszahlung : 25%

Kaution / Depot : 2000 €

Bearbeitungsgebühr : 17 €

Vermietung von Sonntag bis Sonntag : Oui certaines semaines

Höhe des Aufwands : Eingeschlossen

Kurtaxe : Zusätzlich Infos

Gemeinde : NC

Absage

Stornierungsbedingungen : Please consult us for special covid 19 contions

Die Unterkunft

Art der Unterkunft : Ferienwohnung in einer Wohnanlage
Fläche : 141 m²
Stockwerk : NC
Maximale Kapazität : 10
Zimmer : 5
Einzelbett(en) : 10
Doppelbett(en) : 0
Sofa(s) Bett : 0
Badezimmer(s) : 5 + Infos
Sanitär(e) : 5 + Infos

Leistungen

Kamin Kamin
Sauna und/oder Jacuzzi und/oder Hammam Sauna und/oder Jacuzzi und/oder Hammam (Privat(e))
Garage Garage (Privat(e))
Privatparkplatz Privatparkplatz
Skiraum Skiraum (Privat(e))
Balkon Balkon
Terrasse Terrasse (Privat(e))
Ladestation Ladestation
+ Mehr Leistungen
Holzofen Holzofen
Ölofen Ölofen
Kinderspielplatz Kinderspielplatz
Garten Garten
Schwimmbad Schwimmbad
Elektrische Heizung Elektrische Heizung
Zentralheizung Zentralheizung
Holzheizung Holzheizung
Klimaanlage Klimaanlage
Keller Keller
Aufzug Aufzug
Beheiztes Schwimmbecken Beheiztes Schwimmbecken

Dienste

Bettwäsche Bettwäsche
Hauswäsche Hauswäsche
Haushalt Haushalt
Frühstück Frühstück (9€)
Betten bei der Ankunft gemacht Betten bei der Ankunft gemacht
Desinfektion Desinfektion
+ Mehr Dienstleistungen
Mittagessen Mittagessen
Abendessen Abendessen
Brennholz Brennholz
Halbpension Halbpension
Holidays pack Holidays pack

Ausstattungen

Backofen
Waschmaschine
Geschirrspülmaschine
Fernsehgerät
Mikrowellenherd
Wäschetrockner
WIFI- Internetanschluss
+ Weitere Ausstattungen
Grill
Hi-Fi
Satellitenempfänger
Raclettegerät
Fondue
Radio
Gefrierschrank
Waschsalon

Andere

Nichtrauchervermietung Nichtrauchervermietung
+ Mehr Dienstleistungen
Haustiere erlaubt Haustiere erlaubt
Kleine Haustiere erlaubt (Katzen und Hunde) Kleine Haustiere erlaubt (Katzen und Hunde)
Zugang für Personen mit eingeschränkter Mobilität Zugang für Personen mit eingeschränkter Mobilität

Lisa DES BELLEVILLE

Art des Besitzers : Immobilienagentur
Angemeldet seit 25.09.2020

Dieser Vermieter spricht :

Vertrauenswürdiger Vermieter

Urlaubsschecks abgelehnt


Die Unterkunft lokalisieren

Infos zu Stationen

Hauptstation: Saint Martin de Belleville

Entfernung Station : NC
Entfernung Lifts : in der Nähe
Mehr über : Station Saint Martin de Belleville