FUN
Schnee
www.defi-vacances.fr Code Promo : CM14
Ihre Favoriten

Die Favoriten entsprechen den Ferienhäusern, die Sie in Ihre Favoritenliste aufnehmen.
Um weitere hinzuzufügen, klicken Sie auf den grauen Cœur in der oberen rechten Ecke der Vermietungen.
Um sie zu entfernen, klicke erneut auf den Cœur desselben Ortes, der dann orange ist.

Schließen

Vermietung Apartment in einer Wohnanlage Danchet

  • Möblierte Ferienunterkunft 1 Stern

  • 26 m2

  • 4 Personen

  • 25/01/2026

Über

Das Brelin-Gebäude überragt den Ort Les Menuires und liegt oberhalb des Stadtteils La Croisette, der über öffentliche Aufzüge, die rund um die Uhr geöffnet sind, erreicht werden kann.

Die Montée Danchet verfügt über einen kostenlosen Parkplatz am Fuße des Gebäudes.
Die Geschäfte und die Kassen der Skilifte befinden sich im Brelin-Gebäude, in einer Einkaufsgalerie.
Skischränke stehen im Erdgeschoss zur Verfügung.

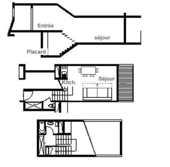
29m² großes Studio mit Bergecke für 4 Personen mit einem nach Süd/West ausgerichteten Balkon im 5. Stock mit Aufzug.
Stock. Außergewöhnliche Aussicht und Sonneneinstrahlung.

Label: 2 Flocken Bronze.

Wohnzimmer: 2 Einzelbetten. Ausgestattet mit einem Fernseher.

Bergecke unter der Treppe: 2 einfache Etagenbetten.

Einbauküche mit 2 Kochplatten, Kombiofen, Kühlschrank, Wasserkocher, Toaster und Kaffeemaschine.

Badezimmer mit Badewanne.
Separates WC

Einweg-Bettwäsche wird zur Verfügung gestellt.
Handtücher werden nicht gestellt.
WIFI-Station gegen Gebühr (abhängig von der Netzabdeckung).
Die hohe Liegefläche ist nicht für Kinder unter 6 Jahren geeignet.

Nichtraucher
Keine Haustiere

SKISCHLOSS MONTEE CHALLE (Ebene im Erdgeschoss der Piste)

Ministerielle Klassifizierung: 1 Stern

Ergebnisse laden

Tarife & Planung dieser Vermietung

(Datum der letzten Aktualisierung : 25/01/2026)

Frei

Nicht verfügbar

Last-Minute-Angebot

Januari
2026
Mo Mar Meer Spiel Fr Sam Dim
29 30 31
1
2
3
4
5
6
7
8
9
10
11
12
13
14
15
16
17
18
19
20
21
22
23
24
25
26
27
28
29
30
31
1
Februari
2026
Mo Mar Meer Spiel Fr Sam Dim
26 27 28 29 30 31
1
2
3
4
5
6
7
8
9
10
11
12
13
14
15
16
17
18
19
20
21
22
23
24
25
26
27
28
1
Maart
2026
Mo Mar Meer Spiel Fr Sam Dim
23 24 25 26 27 28
1
2
3
4
5
6
7
8
9
10
11
12
13
14
15
16
17
18
19
20
21
22
23
24
25
26
27
28
29
30
31
1 2 3 4 5

Zusätzliche Informationen

Abreisezeit am Ende des Aufenthalts : 10h00

Ankunftszeit zu Beginn des Aufenthalts : 16h00

Kaution / Depot : 400 €

Höhe des Aufwands : Eingeschlossen

Kurtaxe : Zusätzlich Infos

Gemeinde : NC

Absage

Stornierungsbedingungen : NC
Stornierungsfristen : NC

Die Unterkunft

Art der Unterkunft : Apartment in einer Wohnanlage
Fläche : 26 m²
Stockwerk : 5. Stock
Maximale Kapazität : 4
Zimmer : 0
Einzelbett(en) : 4
Doppelbett(en) : 0
Sofa(s) Bett :
Badezimmer(s) : 1 + Infos
Sanitär(e) : 1 + Infos

Leistungen

Balkon Balkon
Aufzug Aufzug
+ Mehr Leistungen
Kamin Kamin
Sauna und/oder Jacuzzi und/oder Hammam Sauna und/oder Jacuzzi und/oder Hammam
Holzofen Holzofen
Ölofen Ölofen
Garage Garage
Kinderspielplatz Kinderspielplatz
Garten Garten
Privatparkplatz Privatparkplatz
Schwimmbad Schwimmbad
Elektrische Heizung Elektrische Heizung
Zentralheizung Zentralheizung
Holzheizung Holzheizung
Klimaanlage Klimaanlage
Skiraum Skiraum
Terrasse Terrasse
Keller Keller
Ladestation Ladestation
Beheiztes Schwimmbecken Beheiztes Schwimmbecken

Dienste

+ Mehr Dienstleistungen
Bettwäsche Bettwäsche
Hauswäsche Hauswäsche
Haushalt Haushalt
Frühstück Frühstück
Mittagessen Mittagessen
Abendessen Abendessen
Brennholz Brennholz
Halbpension Halbpension
Holidays pack Holidays pack
Betten bei der Ankunft gemacht Betten bei der Ankunft gemacht
Desinfektion Desinfektion

Ausstattungen

Fernsehgerät
Mikrowellenherd
WIFI- Internetanschluss
+ Weitere Ausstattungen
Grill
Backofen
Waschmaschine
Geschirrspülmaschine
Wäschetrockner
Hi-Fi
Satellitenempfänger
Raclettegerät
Fondue
Radio
Gefrierschrank
Waschsalon

Andere

+ Mehr Dienstleistungen
Haustiere erlaubt Haustiere erlaubt
Kleine Haustiere erlaubt (Katzen und Hunde) Kleine Haustiere erlaubt (Katzen und Hunde)
Nichtrauchervermietung Nichtrauchervermietung
Zugang für Personen mit eingeschränkter Mobilität Zugang für Personen mit eingeschränkter Mobilität

Lisa DES BELLEVILLE

Art des Besitzers : Immobilienagentur
Angemeldet seit 25.09.2020

Dieser Vermieter spricht :

Vertrauenswürdiger Vermieter

Urlaubsschecks abgelehnt


Die Unterkunft lokalisieren

Infos zu Stationen

Hauptstation: Les Menuires

Entfernung Station : NC
Entfernung Lifts : in der Nähe
Mehr über : Station Les Menuires

Verbundene(s) Skigebiet(e)


Domain : Les 3 Vallées ( Courchevel La Tania , Les Menuires , Méribel (centre) , Orelle , Saint Leger Les Melezes , Val Thorens , Brides les bains , Méribel Mottaret , Méribel Village , Méribel Les Allues , )