Crushes correspond to rents which you put in favorites.
To add it, click the grey upper right heart of the rents.
To remove it, re-click the heart of the same rent which will be orange.
Crushes correspond to rents which you put in favorites.
To add it, click the grey upper right heart of the rents.
To remove it, re-click the heart of the same rent which will be orange.
Chalet Montagne > Northern Alps > Oisans > Isère > Rentals Alpe D'huez > Rental n° 23541
4 star furnished holiday flat
90 m2
9 people
26/01/2026
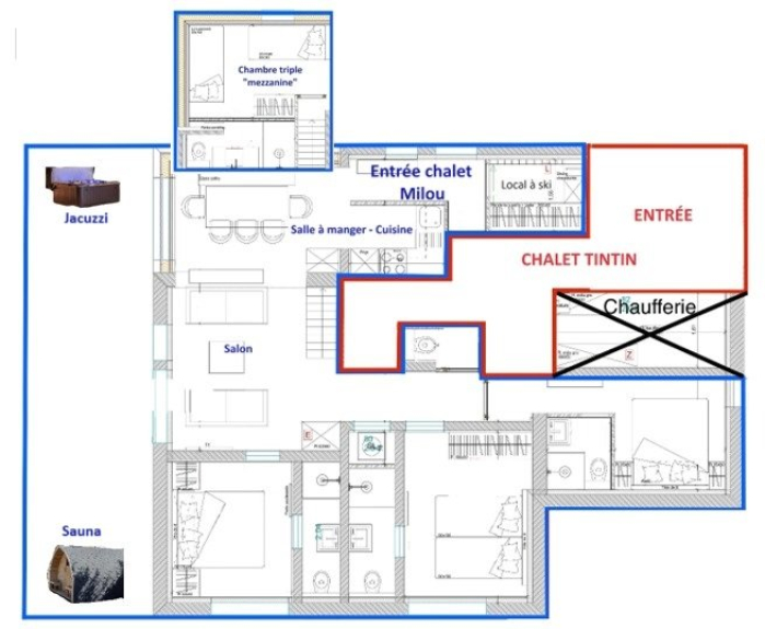
Our chalet is located in the 'Les Chalets de l'Altiport' development, so you can relax in a quiet mountain setting and put your skis on in front of the chalet.
Milou sleeps 9.
It comprises a living room with a fully-equipped kitchen (oven, 4-burner gas hob, fridge, dishwasher, microwave, toaster, electric coffee machine and kettle, L'Or Nespresso machine, wine cellar and raclette machine) opening onto the dining room, 4 bedrooms (2 bedrooms with 1 double bed each, 1 bedroom with 2 single beds and 1 bedroom with 3 single beds, two of which are bunk beds), each with en-suite shower room (shower, vanity unit and toilet), ski/bike storage, sauna and Jacuzzi on the Scandinavian-style terrace.
End-of-stay cleaning and household linen (sheets and towels) are included in the price, and beds are made on arrival.
It is possible to request a cleaning and linen change during the stay, at an additional cost:
- Single sheets: 10€/bed
- Double sheets: 15€/bed
- towels: 6€/pers.
- Cleaning : 30€/h
The chalet has a 5* level but is classified 4*, so the tourist tax is 2.50€/night/pers. from 18 years old, subject to modification by the municipality of Alpe d'Huez. We ask that this be paid at the same time as the balance.
We have a partnership with the Hors-Piste shop, which offers our guests a 25% discount on ski equipment hire.
The Milou chalet can be connected to the Tintin chalet (6 bedrooms, 14 people) for larger families or groups.
Available
Not available
Last minute specials
| Mon | Tue | Wed | Thu | Fri | Sat | Sun |
|---|---|---|---|---|---|---|
| 23 | 24 | 25 | 26 | 27 | 28 |
1
|
|
2
|
3
|
4
|
5
|
6
|
7
|
8
|
|
9
|
10
|
11
|
12
|
13
|
14
|
15
|
|
16
|
17
|
18
|
19
|
20
|
21
|
22
|
|
23
|
24
|
25
|
26
|
27
|
28
|
29
|
|
30
|
31
|
1 | 2 | 3 | 4 | 5 |
| Mon | Tue | Wed | Thu | Fri | Sat | Sun |
|---|---|---|---|---|---|---|
| 30 | 31 |
1
|
2
|
3
|
4
|
5
|
|
6
|
7
|
8
|
9
|
10
|
11
|
12
|
|
13
|
14
|
15
|
16
|
17
|
18
|
19
|
|
20
|
21
|
22
|
23
|
24
|
25
|
26
|
|
27
|
28
|
29
|
30
|
1 | 2 | 3 |
| Mon | Tue | Wed | Thu | Fri | Sat | Sun |
|---|---|---|---|---|---|---|
| 27 | 28 | 29 | 30 |
1
|
2
|
3
|
|
4
|
5
|
6
|
7
|
8
|
9
|
10
|
|
11
|
12
|
13
|
14
|
15
|
16
|
17
|
|
18
|
19
|
20
|
21
|
22
|
23
|
24
|
|
25
|
26
|
27
|
28
|
29
|
30
|
31
|
Check-out : 10h00
Check-in : 17h00
Advance or down payment percentage : 30%
Guarantee / Security Deposit : 2000 €
Booking fee : 40 €
Rental from sunday to sunday : Non
Amount of charges : Included
Tourist tax : In addition Infos
Municipality : HUEZ
Philippe TURC-BARON
Landlord category : Private renter
Registered since 02.03.2022
This landlord speaks :
Holiday checks refused