FUN
Nieve
www.defi-vacances.fr Code Promo : CM14
Sus favoritos

Los favoritos son los alquileres que has marcado como favoritos.
Para añadir una, haga clic en el recuadro gris de la parte superior derecha de las ubicaciones.
Para eliminarlo, vuelva a hacer clic en el corazón del mismo lugar, que será de color naranja.

Cerrar

Alquiler Chalet de lujo Chalet supervue 5 cristaux, 10 personnes

  • Amueblado turismo 5 estrellas

  • 180 m2

  • 10 personas

  • 08/01/2026

Sobre nosotros

Les Arcs, y especialmente 1600, es la única estación francesa a la que se llega en 7 minutos en funicular desde la estación SNCF: se acabaron las preocupaciones por atascos, cadenas, etc...

Courbaton es una aldea de Les Arcs 1600, a 10 minutos a pie del punto de llegada del funicular y de la salida del TS Mont Blanc.

En esquí, está comunicada por la pista azul "Bois de Saule" y la pista roja "Granges", que terminan en la parada del funicular "Les Granges" (2ª y última parada antes de llegar a 1600).

Está alejado del ruido del centro de la estación y de la carretera, con una vista panorámica sin obstáculos.

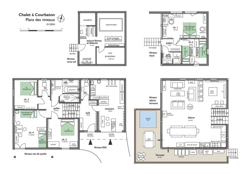
El chalet "7" está clasificado 4 estrellas (nacional) y 4 cristaux (paradiski), y tiene unos 200m2, divididos en :

* 2 dormitorios con 1 cama 160x200, 1 dormitorio con 2 camas eléctricas 80x190 (colchón superpuesto 160x190 disponible)
1 dormitorio con 2 camas 90x200, 1 dormitorio con 4 literas 90x200
La ropa de cama es muy reciente y de muy alta calidad.

* 1 cuarto de baño (bañera de hidromasaje individual), 2 duchas a ras de suelo, 6 lavabos, 2 WC separados, 1 lavadora, 1 secadora, 1 tabla de planchar.

* Salón triple de 50m2 con 2 sofás de cuero de 3 plazas,
estufa de leña Gaudin, piano eléctrico Yamaha, sillones, sillas, hamaca, librería, pantalla curva de 110 cm,
acceso wi-fi...

* 1 zona de fitness equipada con una sauna de 6 plazas, 1 cama de masaje con bolas eléctricas Théramax, 1 bicicleta elíptica, 1 plancha vibratoria Sismo one, 1 pantalla curva de TV...

* 1 jacuzzi exterior de 6 plazas.

* 1 cocina totalmente equipada abierta al salón (Falcon 90 piano con 5 fuegos de gas y horno XXL, 2 microondas, lavavajillas, gran frigorífico-congelador, salamandra, Cook Expert XL Magimix, 2 máquinas de raclette, 2 máquinas de fondue, crepes, olla a presión, cazuelas de hierro colado, etc.).

* Espacio de almacenamiento para esquís, botas y ropa.

* Gran balcón exterior al sur y al oeste, con bonita plancha de gas y hamaca.

* También incluye
camas hechas a la llegada, limpieza a la salida; toallas y artículos de aseo; 2 leñeros llenos; cesta de alimentos (6l de leche, pan, mantequilla, mermelada, zumo de manzana, aceite, vinagre, sal y pimienta, gel combustible y queso para fondue, productos para el hogar....).

Bienvenida y salida a cargo del propietario.

Nota: el forfait incluye el acceso al funicular durante la duración del forfait (compras, cine nocturno, etc.).
Varias tiendas de Bourg Saint Maurice pueden realizar entregas: Biocoop, Intermaché, Super U...
Tiendas disponibles en el centro comercial 1600: alquiler de material, panadería,
Sherpa mini-market, farmacia, catering, restaurantes, snack bars, bares...

Carga de resultados

Tarifas & Planificación de este alquiler

(Fecha de la última actualización : 08/01/2026)

Gratis

No disponible

Promoción de última hora

Enero
2026
Mon Mar Mar Juego Vie Sam Dim
29 30 31
1
2
3
4
5
6
7
8
9
10
11
12
13
14
15
16
17
18
19
20
21
22
23
24
25
26
27
28
29
30
31
1
Febrero
2026
Mon Mar Mar Juego Vie Sam Dim
26 27 28 29 30 31
1
2
3
4
5
6
7
8
9
10
11
12
13
14
15
16
17
18
19
20
21
22
23
24
25
26
27
28
1
Marzo
2026
Mon Mar Mar Juego Vie Sam Dim
23 24 25 26 27 28
1
2
3
4
5
6
7
8
9
10
11
12
13
14
15
16
17
18
19
20
21
22
23
24
25
26
27
28
29
30
31
1 2 3 4 5

Más información

Hora de salida al final de la estancia : 10h00

Hora de llegada al inicio de la estancia : 16h00

Porcentaje de la fianza o del anticipo : 50%

Depósito / Fianza : 4500 €

Alquiler de domingo a domingo : Oui

Importe de los gastos : Incluye

Tasa turística : Incluye

Ciudad : BOURG ST MAURICE

Anulación

Política de cancelación : Standard cancellation policies (respecting french law) With proof document (why you cancel) and delay respect.
Plazos de anulación : 30 día(s)

Vivienda

Tipo de alojamiento : Chalet de lujo
Superficie : 180 m²
Suelo : Planta baja / Una sola planta
Capacidad máxima : 10
Capacidad de confort : 10
Habitaciones : 5
Cama(s) individual(es) : 4
Cama(s) doble(s) : 3
Sofá(s) cama : 0
Baño(s) : 3 + info
Instalaciones sanitarias : 2 + info

Beneficios

Chimenea Chimenea
Sauna y/o jacuzzi y/o baño turco Sauna y/o jacuzzi y/o baño turco (Privado)
Estufa de leña Estufa de leña
Jardín Jardín (Privado)
Parking privado Parking privado (Privado)
Calefacción eléctrica Calefacción eléctrica
Calefacción central Calefacción central
Calefacción de leña Calefacción de leña
Guardaesquí Guardaesquí (Privado)
Balcón Balcón (Privado)
Terraza Terraza (Privado)
+ Más servicios
Estufa de gasoil Estufa de gasoil
Garaje Garaje
Juegos para niños Juegos para niños
Piscina Piscina
Aire acondicionado Aire acondicionado
cava cava
Ascensor Ascensor
Estación de carga Estación de carga
Piscina temperada Piscina temperada

Servicios

Sábanas Sábanas
Toallas y mantelería Toallas y mantelería
 servicio limpieza servicio limpieza (750€)
Desayuno Desayuno (750€)
Leña para calefacción Leña para calefacción
 Holidays pack Holidays pack
(Privado)
Camas hechas a la llegada Camas hechas a la llegada
Desinfección Desinfección
+ Más servicios
Comida Comida
Cena Cena
media pensión media pensión

Equipo

Barbacoa (Privado)
Horno
Lavadora (Privado)
Lavavajillas
Televisor (Privado)
Microondas
Secadora de ropa (Privado)
Internet WIFI (Privado)
Equipo audio
Raclette (Privado)
Fondue (Privado)
Radio
congelador
+ Más facilidades
Receptor de satélite
lavandería

Otros

Alquiler no fumador Alquiler no fumador
+ Más servicios
Se aceptan mascotas Se aceptan mascotas
Se aceptan mascotas pequeñas (gatos y perros ) Se aceptan mascotas pequeñas (gatos y perros )
Acceso para personas con movilidad reducida Acceso para personas con movilidad reducida

Cyril BOURGUE

Tipo de propietario : Arrendatario privado
Registrado desde 02.12.2017

Este contratante habla :

Arrendatario de confianza

Vales de vacaciones rechazados


Localizar el alojamiento

Teletrabajo

Velocidades de Internet :
donwload Descargar : 15.4 Mbps.
upload Transferencia : 1.1 Mbps.
Operador de GSM : Bouygue
Recepción : nc
Redes :
Operador de GSM : Free
Recepción : nc
Redes :
Operador de GSM : Orange
Recepción : upload
Redes : 4G
Operador de GSM : Sfr
Recepción : upload
Redes : 5G