FUN
Nieve
www.defi-vacances.fr Code Promo : CM14
Sus favoritos

Los favoritos son los alquileres que has marcado como favoritos.
Para añadir una, haga clic en el recuadro gris de la parte superior derecha de las ubicaciones.
Para eliminarlo, vuelva a hacer clic en el corazón del mismo lugar, que será de color naranja.

Cerrar

Alquiler Apartamento en chalet Valmonts b

  • 30 m2

  • 4 personas

  • 25/01/2026

Sobre nosotros

La residencia Valmonts B está situada en el barrio de Bruyères, al pie de las pistas, de los remontes y a unos 300 m del centro del barrio.

El acceso en coche se realiza desde el aparcamiento Balcons des Bruyères.
El barrio de Bruyères cuenta con restaurantes, tiendas, una oficina de turismo, una zona acuática y de bienestar, un cine, una pista de trineo, una escuela de esquí y una guardería.
Es una residencia con ascensor y digicode.

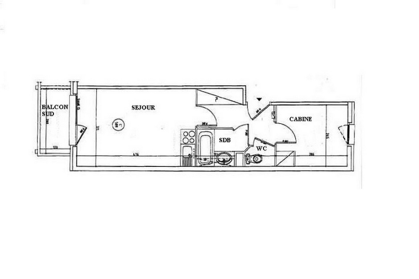
Piso de 2 habitaciones de 30 m² para 4 personas.
Está situado en la 3ª planta con un balcón orientado al suroeste.

Etiqueta : 3 flocons Argent.

Salón: 1 sofá cama individual y 1 cama individual extraíble. Equipado con un televisor.
Habitación: 1 cama doble.

Cocina equipada con 4 placas de inducción, lavavajillas, frigorífico, microondas, cafetera eléctrica, hervidor y tostadora.

Baño con bañera.
Aseo separado.

Se proporcionan sábanas desechables.
No se proporcionan toallas.
Estación WIFI (sujeta a la cobertura de la red).

Piso para no fumadores.

Suelo laminado en todo el piso.

Carga de resultados

Tarifas & Planificación de este alquiler

(Fecha de la última actualización : 25/01/2026)

Gratis

No disponible

Promoción de última hora

Marzo
2026
Mon Mar Mar Juego Vie Sam Dim
23 24 25 26 27 28
1
2
3
4
5
6
7
8
9
10
11
12
13
14
15
16
17
18
19
20
21
22
23
24
25
26
27
28
29
30
31
1 2 3 4 5
Abril
2026
Mon Mar Mar Juego Vie Sam Dim
30 31
1
2
3
4
5
6
7
8
9
10
11
12
13
14
15
16
17
18
19
20
21
22
23
24
25
26
27
28
29
30
1 2 3
Mayo
2026
Mon Mar Mar Juego Vie Sam Dim
27 28 29 30
1
2
3
4
5
6
7
8
9
10
11
12
13
14
15
16
17
18
19
20
21
22
23
24
25
26
27
28
29
30
31

Más información

Hora de salida al final de la estancia : 10h00

Hora de llegada al inicio de la estancia : 16h00

Depósito / Fianza : 400 €

Importe de los gastos : Incluye

Tasa turística : Además Infos

Ciudad : NC

Anulación

Política de cancelación : NC
Plazos de anulación : NC

Vivienda

Tipo de alojamiento : Apartamento en chalet
Superficie : 30 m²
Suelo : 3o
Capacidad máxima : 4
Habitaciones : 1
Cama(s) individual(es) : 2
Cama(s) doble(s) : 1
Sofá(s) cama :
Baño(s) : 1 + info
Instalaciones sanitarias : 1 + info

Beneficios

Balcón Balcón
Ascensor Ascensor
+ Más servicios
Chimenea Chimenea
Sauna y/o jacuzzi y/o baño turco Sauna y/o jacuzzi y/o baño turco
Estufa de leña Estufa de leña
Estufa de gasoil Estufa de gasoil
Garaje Garaje
Juegos para niños Juegos para niños
Jardín Jardín
Parking privado Parking privado
Piscina Piscina
Calefacción eléctrica Calefacción eléctrica
Calefacción central Calefacción central
Calefacción de leña Calefacción de leña
Aire acondicionado Aire acondicionado
Guardaesquí Guardaesquí
Terraza Terraza
cava cava
Estación de carga Estación de carga
Piscina temperada Piscina temperada

Servicios

+ Más servicios
Sábanas Sábanas
Toallas y mantelería Toallas y mantelería
 servicio limpieza servicio limpieza
Desayuno Desayuno
Comida Comida
Cena Cena
Leña para calefacción Leña para calefacción
media pensión media pensión
 Holidays pack Holidays pack
Camas hechas a la llegada Camas hechas a la llegada
Desinfección Desinfección

Equipo

Lavavajillas
Televisor
Microondas
+ Más facilidades
Barbacoa
Horno
Lavadora
Secadora de ropa
Internet WIFI
Equipo audio
Receptor de satélite
Raclette
Fondue
Radio
congelador
lavandería

Otros

+ Más servicios
Se aceptan mascotas Se aceptan mascotas
Se aceptan mascotas pequeñas (gatos y perros ) Se aceptan mascotas pequeñas (gatos y perros )
Alquiler no fumador Alquiler no fumador
Acceso para personas con movilidad reducida Acceso para personas con movilidad reducida

Lisa DES BELLEVILLE

Tipo de propietario : Agencia inmobiliaria
Registrado desde 25.09.2020

Este contratante habla :

Arrendatario de confianza

Vales de vacaciones rechazados


Localizar el alojamiento

Información de la estación

Estación principal: Les Menuires

Estación de distancia : NC
Distancia a los ascensores : cerca de
Más información : estación Les Menuires

Zona(s) de esquí vinculada(s)


Dominio : Les 3 Vallées ( Courchevel La Tania , Les Menuires , Méribel (centre) , Orelle , Saint Leger Les Melezes , Val Thorens , Brides les bains , Méribel Mottaret , Méribel Village , Méribel Les Allues , )