FUN
La neve
www.defi-vacances.fr Code Promo : CM14
I tuoi preferiti

I preferiti sono i noleggi che hai messo tra i preferiti.
Per aggiungerne uno, clicca sulla casella grigia in alto a destra delle località.
Per rimuoverlo, clicca di nuovo sul cuore della stessa posizione, che sarà arancione.

Chiudere

Noleggio Appartamento in residence Caseblanche

  • 140 m2

  • 10 persone

  • 25/01/2026

Chi siamo

La frazione di Caseblanche è uno sviluppo recente di chalet di alta qualità, con accesso diretto alla pista, e a 50 metri dalla gondola Saint Martin (ingresso diretto al comprensorio delle 3 Valli).
Il sentiero Notre Dame de la Vie passa attraverso il borgo.
C'è un negozio di sport, un negozio di alimentari con pane fresco al mattino e una brasserie di montagna. È disponibile un punto di ricarica per le auto elettriche. Servizi di portineria.

Lo Chalet PEAK A VUE è uno chalet da cartolina, tutto in un'eleganza accogliente. Questo chalet di 140 m² su 3 livelli per 10 persone è perfetto per famiglie o amici: un momento di relax sulla sua grande terrazza di 15 m², sala TV al primo piano, partenza sulle piste con gli sci, scarponi da sci preriscaldati...

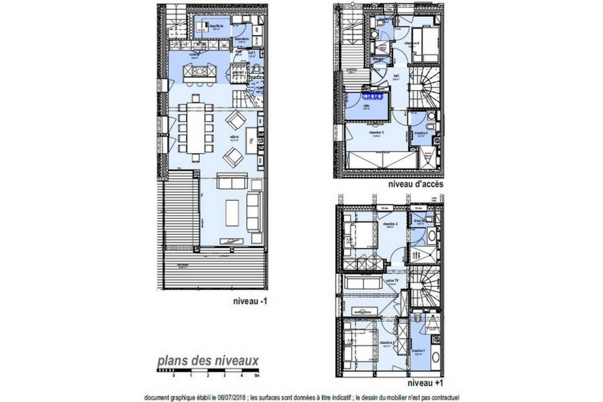
Livello -1 :
Bel soggiorno di circa 40m² con sala da pranzo, accogliente salone con terrazza solarium.
Cucina: lavastoviglie, forno, microonde, piano cottura a induzione, bollitore, tostapane e caffettiera.
Lavanderia con lavatrice e asciugatrice.
Toilette separata con lavamani.

Livello 0 :
Camera da letto 1 en suite con doccia e WC: 1 letto matrimoniale (160x200).
Camera da letto 2 en suite con doccia e WC: 2 * 2 letti a castello singoli (90x190).
Deposito privato per gli sci con asciuga scarponi e guanti.

Livello 1 (moquette in entrambe le camere da letto):
Camera da letto 3 en suite con doccia e WC: 1 letto matrimoniale.
Camera da letto 4 en suite con doccia e WC: 1 letto matrimoniale.
Sala TV. Solo canali inglesi.

Servizi inclusi:
WIFI.
Spazio di garage incluso.
In inverno: Letti fatti all'arrivo. Asciugamani, strofinacci e tappetini da bagno.

Altro :
Chalet per non fumatori.
Non sono ammessi animali domestici.
Servizio concierge.

Caricamento dei risultati

Tariffe & Pianificazione di questo noleggio

(Data dell'ultimo aggiornamento : 25/01/2026)

Libero

Non disponibile

Promozione dell'ultimo minuto

Gennaio
2026
Mon Mar Mare Gioco Ven Sam Dim
29 30 31
1
2
3
4
5
6
7
8
9
10
11
12
13
14
15
16
17
18
19
20
21
22
23
24
25
26
27
28
29
30
31
1
Febbraio
2026
Mon Mar Mare Gioco Ven Sam Dim
26 27 28 29 30 31
1
2
3
4
5
6
7
8
9
10
11
12
13
14
15
16
17
18
19
20
21
22
23
24
25
26
27
28
1
Marzo
2026
Mon Mar Mare Gioco Ven Sam Dim
23 24 25 26 27 28
1
2
3
4
5
6
7
8
9
10
11
12
13
14
15
16
17
18
19
20
21
22
23
24
25
26
27
28
29
30
31
1 2 3 4 5

Ulteriori informazioni

Orario di partenza alla fine del soggiorno : 10h00

Orario di arrivo all'inizio del vostro soggiorno : 17h00

Percentuale del deposito o dell'anticipo : 25%

Deposito / Cauzione : 2000 €

Tassa d'iscrizione : 17 €

Noleggio da domenica a domenica : Oui certaines semaines

Importo delle spese : Incluso

Tassa di soggiorno : In aggiunta Infos

Città : NC

Cancellazione

Politica di cancellazione : Please consult us for special covid 19 contions

Housing

Tipo di alloggio : Appartamento in residence
Superficie : 140 m²
Pavimento : Piano terra/Livello giardino
Capacità massima : 10
Camere : 4
Letto/i singolo/i : 4
Letto(i) matrimoniale(i) : 3
Divano(i) letto : 0
Bagno/i : 4 + info
Strutture sanitarie : 5 + info

Vantaggi

Camino Camino
Sauna/Idromassaggio/Bagno turco Sauna/Idromassaggio/Bagno turco (Privato)
Garage Garage (Privato)
Parcheggio auto privato Parcheggio auto privato
Locale sci Locale sci (Privato)
Balcone Balcone
Terrazza Terrazza (Privato)
Ascensore Ascensore
Stazione di ricarica Stazione di ricarica
+ Altri servizi
Stufa a legna Stufa a legna
Stufa a nafta Stufa a nafta
Parco giochi per bambini Parco giochi per bambini
Giardino Giardino
Piscina Piscina
Riscaldamento autonomo Riscaldamento autonomo
Riscaldamento centralizzato Riscaldamento centralizzato
Riscaldamento a legna Riscaldamento a legna
Aria condizionata Aria condizionata
cellar cellar
Piscina riscaldata Piscina riscaldata

Servizi

Lenzuola Lenzuola
Asciugamani Asciugamani
Pulizie Pulizie
Prima colazione Prima colazione (9€)
Letti effettuati all'arrivo Letti effettuati all'arrivo
Disinfezione Disinfezione
+ Altri servizi
Pranzo Pranzo
Cena Cena
Legna per camino Legna per camino
mezza pensione mezza pensione
Holidays pack Holidays pack

Attrezzatura

Forno
Lavatrice
Lavastoviglie
Televisione
Forno microonde
Asciuga biancheria
Internet WIFI
+ Altri servizi
Barbecue
Hi-Fi
Ricevitore satellitare
Servizio per Raclette
Servizio per Fonduta
Radio
Congelatore
lavanderia

Altro

Riservato ai non fumatori Riservato ai non fumatori
+ Altri servizi
Si accettano animali domestici Si accettano animali domestici
Si accettano animali domestici di taglia (gatti o cani di piccola taglia) Si accettano animali domestici di taglia (gatti o cani di piccola taglia)
Accesso per persone con handicap motorio Accesso per persone con handicap motorio

Lisa DES BELLEVILLE

Tipo di proprietario : Agenzia immobiliare
Registrato dal 25.09.2020

Questo noleggiatore parla :

Affittuario di fiducia

Buoni vacanza rifiutati


Individuare l'alloggio

Informazioni sulla stazione

Stazione principale: Saint Martin de Belleville

Stazione di distanza : NC
Distanza dagli ascensori : nelle vicinanze
Per saperne di più : stazione Saint Martin de Belleville