I preferiti sono i noleggi che hai messo tra i preferiti.
Per aggiungerne uno, clicca sulla casella grigia in alto a destra delle località.
Per rimuoverlo, clicca di nuovo sul cuore della stessa posizione, che sarà arancione.
I preferiti sono i noleggi che hai messo tra i preferiti.
Per aggiungerne uno, clicca sulla casella grigia in alto a destra delle località.
Per rimuoverlo, clicca di nuovo sul cuore della stessa posizione, che sarà arancione.
Chalet Montagne > Alpi del Nord > Haute-Tarentaise > Savoie > Affitti Les Menuires > Noleggio n° 23750
Meublé turistico 2 stelle
27 m2
4 persone
07/08/2025
La residenza Balcons d'Olympie si trova nel quartiere di Preyerand.
È ski in ski out.
Avete un accesso diretto al quartiere centrale della Croisette tramite le cabine TéléPreyerand che sono gratuite e aperte tutti i giorni dalle 8H alle 23H.
Le comodità e le biglietterie degli impianti di risalita sono a meno di 10 minuti a piedi.
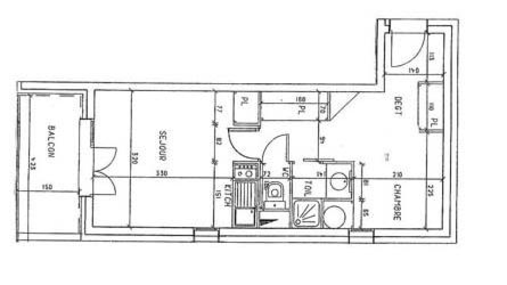
Bilocale 27 m² per 4 persone. Situato al 3 ° piano, ha un balcone
balcone rivolto a ovest.
Ingresso A.
Etichetta : 2 flocons Argent
Soggiorno : 1 divano letto per 2 persone, tipo BZ. Dotato di un televisore a schermo piatto.
Zona notte chiusa da una porta scorrevole: 2 letti a castello singoli e 1 letto singolo.
Bagno con vasca da bagno. WC separato.
Cucina completamente attrezzata: frigorifero, 2 piastre elettriche, forno e microonde, lavastoviglie, macchina da caffè elettrica e bollitore.
Lenzuola usa e getta fornite gratuitamente. Asciugamani non forniti.
Stazione WIFI (soggetto a copertura di rete).
Il letto alto non è adatto ai bambini sotto i 6 anni.
Appartamento per non fumatori.
Classificazione del dipartimento: 2 Stelle
Libero
Non disponibile
Promozione dell'ultimo minuto
| Mon | Mar | Mare | Gioco | Ven | Sam | Dim |
|---|---|---|---|---|---|---|
| 29 | 30 | 31 |
1
|
2
|
3
|
4
|
|
5
|
6
|
7
|
8
|
9
|
10
|
11
|
|
12
|
13
|
14
|
15
|
16
|
17
|
18
|
|
19
|
20
|
21
|
22
|
23
|
24
|
25
|
|
26
|
27
|
28
|
29
|
30
|
31
|
1 |
| Mon | Mar | Mare | Gioco | Ven | Sam | Dim |
|---|---|---|---|---|---|---|
| 26 | 27 | 28 | 29 | 30 | 31 |
1
|
|
2
|
3
|
4
|
5
|
6
|
7
|
8
|
|
9
|
10
|
11
|
12
|
13
|
14
|
15
|
|
16
|
17
|
18
|
19
|
20
|
21
|
22
|
|
23
|
24
|
25
|
26
|
27
|
28
|
1 |
| Mon | Mar | Mare | Gioco | Ven | Sam | Dim |
|---|---|---|---|---|---|---|
| 23 | 24 | 25 | 26 | 27 | 28 |
1
|
|
2
|
3
|
4
|
5
|
6
|
7
|
8
|
|
9
|
10
|
11
|
12
|
13
|
14
|
15
|
|
16
|
17
|
18
|
19
|
20
|
21
|
22
|
|
23
|
24
|
25
|
26
|
27
|
28
|
29
|
|
30
|
31
|
1 | 2 | 3 | 4 | 5 |
Orario di partenza alla fine del soggiorno : 10h00
Orario di arrivo all'inizio del vostro soggiorno : 16h00
Deposito / Cauzione : 400 €
Importo delle spese : Incluso
Tassa di soggiorno : In aggiunta Infos
Città : NC
Lisa DES BELLEVILLE
Tipo di proprietario : Agenzia immobiliare
Registrato dal 25.09.2020
Questo noleggiatore parla :
Buoni vacanza rifiutati