FUN
La neve
www.defi-vacances.fr Code Promo : CM14
I tuoi preferiti

I preferiti sono i noleggi che hai messo tra i preferiti.
Per aggiungerne uno, clicca sulla casella grigia in alto a destra delle località.
Per rimuoverlo, clicca di nuovo sul cuore della stessa posizione, che sarà arancione.

Chiudere

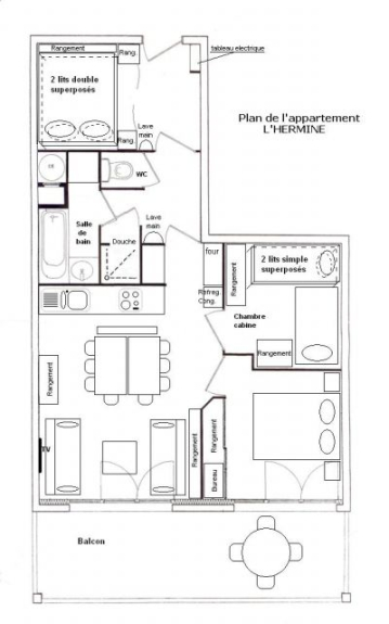
Noleggio Appartamento in residence : pistes à 200m, tout confort. hermine

  • 60 m2

  • 8 persone

  • 18/01/2026

Chi siamo

Piste e impianti di risalita a 200 metri. Armadio per gli sci.
In un'accogliente stazione familiare con accesso diretto a un comprensorio sciistico di qualità e agli impianti di risalita (Alpe d'Huez, 250 km di piste).

60m² appartamento + balcone

"COVID19 : istruzioni sanitarie prese in considerazione"

>> Soggiorno 24 m² (esposizione ovest) con cucina attrezzata, bella vista e accesso al balcone.
- In cucina: lavastoviglie, piano cottura in vetroceramica, lavello, cappa, forno, frigorifero/congelatore, microonde, macchina da caffè, tostapane, caffettiera, bollitore, libro di ricette, raclette, robot da cucina multifunzione, pentola a pressione...
- Nel soggiorno, 2 divani, un televisore, un lettore DVD, un sistema hi-fi, un ferro da stiro, giochi da tavolo, fumetti, DVD e libri...

>> 3 camere da letto:
- 1 camera da letto con un letto matrimoniale,
- 1 camera da letto con 2 letti a castello singoli e un divano letto,
- 1 camera con 2 letti matrimoniali a castello e un punto d'acqua.

>> 2 bagni:
- 1 bagno con vasca, lavabo e lavatrice
- 1 doccia indipendente
- 1 W-C indipendente, 2 rondelle manuali indipendenti

>> Balcone di 14m² con mobili da giardino

>> Possibilità di un garage.

Possibilità di arrivare il venerdì, sabato o domenica, e di affittare da 8 a 12 giorni, contattateci.

-20% di sconto sul noleggio dell'attrezzatura da snowboard

Caricamento dei risultati

Tariffe & Pianificazione di questo noleggio

(Data dell'ultimo aggiornamento : 18/01/2026)

Libero

Non disponibile

Promozione dell'ultimo minuto

Marzo
2026
Mon Mar Mare Gioco Ven Sam Dim
23 24 25 26 27 28
1
2
3
4
5
6
7
8
9
10
11
12
13
14
15
16
17
18
19
20
21
22
23
24
25
26
27
28
29
30
31
1 2 3 4 5
Aprile
2026
Mon Mar Mare Gioco Ven Sam Dim
30 31
1
2
3
4
5
6
7
8
9
10
11
12
13
14
15
16
17
18
19
20
21
22
23
24
25
26
27
28
29
30
1 2 3
Maggio
2026
Mon Mar Mare Gioco Ven Sam Dim
27 28 29 30
1
2
3
4
5
6
7
8
9
10
11
12
13
14
15
16
17
18
19
20
21
22
23
24
25
26
27
28
29
30
31

Ulteriori informazioni

Orario di partenza alla fine del soggiorno : 12h00

Orario di arrivo all'inizio del vostro soggiorno : 14h00

Percentuale del deposito o dell'anticipo : 25%

Deposito / Cauzione : 500 €

Noleggio da domenica a domenica : Oui certaines semaines

Importo delle spese : Incluso

Tassa di soggiorno : Incluso

Città : OZ

Cancellazione

Politica di cancellazione : Flexible cancellation, just respect the delay
Termini di cancellazione : 30 giorno/i

Housing

Tipo di alloggio : Appartamento in residence
Superficie : 60 m²
Pavimento : Primo piano
Capacità massima : 8
Capacità di comfort : 7
Camere : 3
Letto/i singolo/i : 3
Letto(i) matrimoniale(i) : 3
Divano(i) letto : 0
Bagno/i : 2 + info
Strutture sanitarie : 1 + info

Vantaggi

Garage Garage (Privato)
Parco giochi per bambini Parco giochi per bambini (Privato)
Riscaldamento autonomo Riscaldamento autonomo
Riscaldamento centralizzato Riscaldamento centralizzato
Locale sci Locale sci (Privato)
Balcone Balcone (Privato)
Ascensore Ascensore
+ Altri servizi
Camino Camino
Sauna/Idromassaggio/Bagno turco Sauna/Idromassaggio/Bagno turco
Stufa a legna Stufa a legna
Stufa a nafta Stufa a nafta
Giardino Giardino
Parcheggio auto privato Parcheggio auto privato
Piscina Piscina
Riscaldamento a legna Riscaldamento a legna
Aria condizionata Aria condizionata
Terrazza Terrazza
cellar cellar
Stazione di ricarica Stazione di ricarica
Piscina riscaldata Piscina riscaldata

Servizi

+ Altri servizi
Lenzuola Lenzuola
Asciugamani Asciugamani
Pulizie Pulizie
Prima colazione Prima colazione
Pranzo Pranzo
Cena Cena
Legna per camino Legna per camino
mezza pensione mezza pensione
Holidays pack Holidays pack
Letti effettuati all'arrivo Letti effettuati all'arrivo
Disinfezione Disinfezione

Attrezzatura

Forno
Lavatrice
Lavastoviglie
Televisione
Forno microonde
Hi-Fi
Servizio per Raclette
Servizio per Fonduta
Radio
Congelatore
+ Altri servizi
Barbecue
Asciuga biancheria
Internet WIFI
Ricevitore satellitare
lavanderia

Altro

Riservato ai non fumatori Riservato ai non fumatori
+ Altri servizi
Si accettano animali domestici Si accettano animali domestici
Si accettano animali domestici di taglia (gatti o cani di piccola taglia) Si accettano animali domestici di taglia (gatti o cani di piccola taglia)
Accesso per persone con handicap motorio Accesso per persone con handicap motorio

Fabien G.

Tipo di proprietario : Affittuario privato
Registrato dal 05.10.2002

Questo noleggiatore parla :

Affittuario di fiducia

Buoni vacanza accettati


Individuare l'alloggio

Informazioni sulla stazione

Stazione principale: Oz en Oisans

Stazione di distanza : nelle vicinanze
Distanza dagli ascensori : nelle vicinanze
Per saperne di più : stazione Oz en Oisans

Area sciistica collegata


Dominio : Alpe d'Huez grand domaine Ski ( Alpe D'huez , Alpe Du Grand Serre , Vaujany , Oz en Oisans , Auris en Oisans , Villard-Reculas , )

Stazione secondaria: Alpe D'huez

Stazione di distanza : meno di 2 km
Distanza dagli ascensori : nelle vicinanze
Per saperne di più : stazione Alpe D'huez

Area sciistica collegata


Dominio : Alpe d'Huez grand domaine Ski ( Alpe D'huez , Alpe Du Grand Serre , Vaujany , Oz en Oisans , Auris en Oisans , Villard-Reculas , )