On
Vos coups de coeurs

Les coups de cœur correspondent à des locations que vous mettez en favoris.
Pour en ajouter, cliquer sur le cœur gris en haut à droite des locations.
Pour en enlever, re-cliquer sur le cœur de cette même location qui sera orange.

Fermer

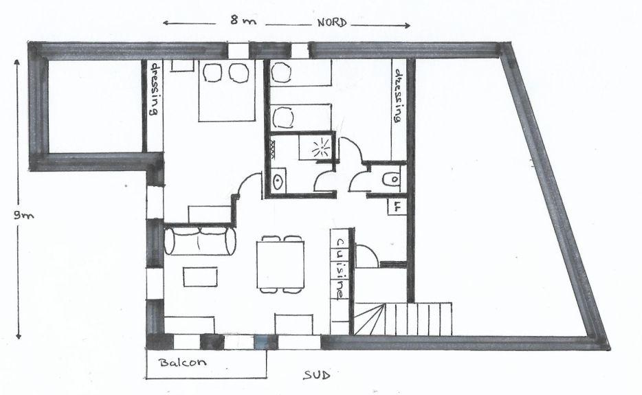
Location Appartement en chalet La cascade *****

  • Résidence Hôtelière 5 étoiles

  • 70 m2

  • 4 personnes

  • 26/01/2026

À propos

Appartement très grand confort et exceptionnellement spacieux, avec balcon exposition plein Sud à 150 mètres des pistes de ski et à proximité de toutes commodités. Classement 5 étoiles en janvier 2021.

Magnifique chalet traditionnel en pierres couvert de lauzes, ensoleillé, calme. Rangement skis et sèche-chaussures dans l'entrée du chalet.

POUR CET ÉTÉ 2023 : du 01/07 au 26/08, l'appartement est proposé à la location uniquement par QUINZAINES (option ménage offerte) !

SÉJOUR/CUISINE :
Séjour lumineux très chaleureux avec charpente en mélèze apparente et cuisine intégrée.
Équipement de grande qualité (plaque induction, four pyrolyse, réfrigérateur et congélateur indépendants, lave-vaisselle, micro-ondes, TV connectée, barre de son bluetooth) . Chauffage au sol réglable pièce par pièce, canapés et fauteuils de relaxation. Balcon plein Sud avec vue sur les pistes et la montagne.

COUCHAGES :
Une chambre avec un lit 2 places king size (180x200 cm). Une chambre avec 2 lits 1 place (90 x 200 cm, parfaitement jumelables si vous venez à deux couples), literie de grande qualité avec sommiers bultex et matelas Emma pour des nuits réparatrices.

SALLES D'EAU :
Salle de Bains avec douche à l'italienne, sèche-serviettes électrique et miroir éclairant antibuée avec sèche-cheveux.
WC suspendu, indépendant.

TARIFS ET DISPONIBILITES :
Prix comprenant le linge de literie, de maison et toutes les charges, sauf taxe de séjour intercommunale fixée à 2,50€ par jour et par personne de plus de 18 ans.
Tarifs et disponibilités visibles sur l'onglet "Tarifs".

ATTENTION : du 01/07 au 26/08, l'appartement est proposé à la location uniquement par quinzaines (option ménage offerte) !

Chargement des résultats

Tarifs & Planning de cette location

(Date de dernière mise à jour : 26/01/2026)

Libre

Non disponible

Promotion de dernière minute

Janvier
2026
Lun Mar Mer Jeu Ven Sam Dim
29 30 31
1
2
3
4
5
6
7
8
9
10
11
12
13
14
15
16
17
18
19
20
21
22
23
24
25
26
27
28
29
30
31
1
Février
2026
Lun Mar Mer Jeu Ven Sam Dim
26 27 28 29 30 31
1
2
3
4
5
6
7
8
9
10
11
12
13
14
15
16
17
18
19
20
21
22
23
24
25
26
27
28
1
Mars
2026
Lun Mar Mer Jeu Ven Sam Dim
23 24 25 26 27 28
1
2
3
4
5
6
7
8
9
10
11
12
13
14
15
16
17
18
19
20
21
22
23
24
25
26
27
28
29
30
31
1 2 3 4 5

Informations complémentaires

Heure de départ en fin de séjour : 09h00

Heure d'arrivée en début de séjour : 17h00

Pourcentage d'accompte ou d'arrhes : 30%

Caution / Dépôt de garantie : 600 €

Location du dimanche au dimanche : Oui certaines semaines

Montant des charges : Incluses

Taxe de séjour : En sus Infos

Annulation

Conditions d'annulation : Annulation spécial Covid 19 standard, en cas de confinement vous empêchant de vous rendre sur le lieu de villégiature nous garantissons un remboursement des sommes versées.

Le logement

Type de logement : Appartement en chalet
Surface : 70 m²
Étage : 2eme
Capacité maximale : 4
Capacité confort : 4
Chambres : 2
Lit(s) simple : 2
Lit(s) double : 1
Canapé(s) lit : 0
Salle(s) de bain : 1 + infos
Sanitaire(s) : 2 + infos

Prestations

Chauffage électrique Chauffage électrique
Local à skis Local à skis
Balcon Balcon
+ Plus de prestations
Cheminée Cheminée
Sauna et/ou Jacuzzi et/ou Hammam Sauna et/ou Jacuzzi et/ou Hammam
Poêle à bois Poêle à bois
Poêle à Fioul Poêle à Fioul
Garage Garage
Jeux enfants Jeux enfants
Jardin Jardin
Parking privé Parking privé
Piscine Piscine
Chauffage central Chauffage central
Chauffage à bois Chauffage à bois
Climatisation Climatisation
Terrasse Terrasse
Cave Cave
Ascenseur Ascenseur
Station de charge (véhicule) Station de charge (véhicule)
Piscine chauffée Piscine chauffée

Services

Draps fournis Draps fournis
Linge de maison fourni Linge de maison fourni
Ménage Ménage (90€)
Kit Bébé Kit Bébé
Lits faits à l’arrivée Lits faits à l’arrivée
+ Plus de services
Petit déjeuner Petit déjeuner
Déjeuner Déjeuner
Diner Diner
Bois de chauffage Bois de chauffage
Demi-pension Demi-pension
Pack Vacances (Draps - Housses de couette - Taies - Kit draps de bain - Tapis de bain - Torchons - Menage fin de sejour) Pack Vacances (Draps - Housses de couette - Taies - Kit draps de bain - Tapis de bain - Torchons - Menage fin de sejour)
Désinfection Désinfection

Équipements

Four
Lave-linge
Lave-vaisselle
Télévision
Micro-ondes
Internet WIFI
Hi-Fi
Appareil à raclette
Service à fondue
Congélateur
+ Plus d'équipements
Barbecue
Sèche-linge
Récepteur satellite
Radio
Laverie

Autres

Location non fumeur Location non fumeur
+ Plus de services
Animaux acceptés Animaux acceptés
Petits animaux acceptés (chats et chiens) Petits animaux acceptés (chats et chiens)
Accès pour personnes à mobilité réduite Accès pour personnes à mobilité réduite

Noémie CHARRIER

Type de propriétaire : Loueur particulier
Inscrit depuis le 27.01.2020

Ce loueur parle :

Loueur de confiance

Chèques vacances refusés


Localiser le logement

Télétravail

Débits internet :
donwload Téléchargement : 27.8 Mbps.
upload Transfer : 4 Mbps.
Opérateur GSM : Bouygue
Réception : nc
Réseaux :
Opérateur GSM : Free
Réception : nc
Réseaux :
Opérateur GSM : Orange
Réception : upload
Réseaux : 4G
Opérateur GSM : Sfr
Réception : nc
Réseaux :

Infos stations

Station principale: Bonneval sur Arc

Distance station : à proximité
Distance remontées : à proximité
En savoir plus sur : station Bonneval sur Arc

Station secondaire: Bessans Val D'arc

Distance station : 5 à 10 kms
Distance remontées : à proximité
En savoir plus sur : station Bessans Val D'arc
Vous ne trouvez pas ? vous n'avez pas le temps ?
Faite un appel d'offre