FUN
Neige
www.defi-vacances.fr Code Promo : CM14
Vos coups de coeurs

Les coups de cœur correspondent à des locations que vous mettez en favoris.
Pour en ajouter, cliquer sur le cœur gris en haut à droite des locations.
Pour en enlever, re-cliquer sur le cœur de cette même location qui sera orange.

Fermer

Location Appartement en résidence Aconit

  • 62 m2

  • 8 personnes

  • 25/01/2026

À propos

Résidence au centre du quartier des Bruyères, skis aux pieds. Avec digicode. Réception sur place uniquement pour les clients de PV uniquement

La résidence Aconit se situe au centre du quartier des Bruyères, skis aux pieds.

Le quartier des Bruyères dispose de restaurants, commerces, office de tourisme, espace aqualudique et wellness, cinéma, luge sur rail, école de ski, jardin d'enfants.
C'est une résidence avec ascenseur et digicode. Les casiers à ski offrent un accès direct sur les pistes.
La résidence est équipée d'une laverie automatique (lave-linge et sèche-linge), paiement sur place.

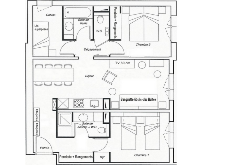
Bel appartement entièrement rénové de 62 m² pour 8 personnes avec séjour, 2 chambres et cabine.
Il est situé au 1er étage exposé SUD-EST sans balcon. Appartement loué avec une place de parking couvert (hauteur limitée à 2 mètres et accès direct à la résidence).
Casier à ski avec accès direct sur la piste Fontanettes.

Label : 3 flocons or.

Séjour : 1 banquette clic-clac, matelas Bultex, pour 2 personnes. Equipé d'une télévision.

Cuisine équipée de 4 plaques électriques, grand frigo, lave-vaisselle, four micro-ondes, cafetière et machine à expresso Senséo, bouilloire et grille-pain.

Chambre 1: 2 lits 1 personne.

Chambre 2: 2 lits 1 personne.

Cabine (fermée par une porte, avec fenêtre) : 2 lits 1 personne superposés.

Salle de bains avec baignoire.
Salle d'eau avec douche et WC.
WC indépendant.

Draps coton offerts.
Serviettes non fournies.
WIFI Station payant, sous réserve de couverture du réseau.

Appartement non fumeur.
Appartement équipé de couettes
Animaux non admis.
Le couchage en hauteur ne convient pas aux enfants de moins de 6 ans.

Sol parquet stratifié dans les pièces de vie et moquette dans les chambres
Laverie automatique disponible dans la résidence (accès payant).

Chargement des résultats

Tarifs & Planning de cette location

(Date de dernière mise à jour : 25/01/2026)

Libre

Non disponible

Promotion de dernière minute

Janvier
2026
Lun Mar Mer Jeu Ven Sam Dim
29 30 31
1
2
3
4
5
6
7
8
9
10
11
12
13
14
15
16
17
18
19
20
21
22
23
24
25
26
27
28
29
30
31
1
Février
2026
Lun Mar Mer Jeu Ven Sam Dim
26 27 28 29 30 31
1
2
3
4
5
6
7
8
9
10
11
12
13
14
15
16
17
18
19
20
21
22
23
24
25
26
27
28
1
Mars
2026
Lun Mar Mer Jeu Ven Sam Dim
23 24 25 26 27 28
1
2
3
4
5
6
7
8
9
10
11
12
13
14
15
16
17
18
19
20
21
22
23
24
25
26
27
28
29
30
31
1 2 3 4 5

Informations complémentaires

Heure de départ en fin de séjour : 10h00

Heure d'arrivée en début de séjour : 16h00

Caution / Dépôt de garantie : 400 €

Montant des charges : Incluses

Taxe de séjour : En sus Infos

Commune : NC

Annulation

Conditions d'annulation : NC
Délais d'annulation : NC

Le logement

Type de logement : Appartement en résidence
Surface : 62 m²
Étage : NC
Capacité maximale : 8
Chambres : 2
Lit(s) simple : 6
Lit(s) double : 1
Canapé(s) lit :
Salle(s) de bain : 2 + infos
Sanitaire(s) : 2 + infos

Prestations

Parking privé Parking privé
Ascenseur Ascenseur
+ Plus de prestations
Cheminée Cheminée
Sauna et/ou Jacuzzi et/ou Hammam Sauna et/ou Jacuzzi et/ou Hammam
Poêle à bois Poêle à bois
Poêle à Fioul Poêle à Fioul
Garage Garage
Jeux enfants Jeux enfants
Jardin Jardin
Piscine Piscine
Chauffage électrique Chauffage électrique
Chauffage central Chauffage central
Chauffage à bois Chauffage à bois
Climatisation Climatisation
Local à skis Local à skis
Balcon Balcon
Terrasse Terrasse
Cave Cave
Station de charge (véhicule) Station de charge (véhicule)
Piscine chauffée Piscine chauffée

Services

+ Plus de services
Draps fournis Draps fournis
Linge de maison fourni Linge de maison fourni
Ménage Ménage
Petit déjeuner Petit déjeuner
Déjeuner Déjeuner
Diner Diner
Bois de chauffage Bois de chauffage
Demi-pension Demi-pension
Pack Vacances (Draps - Housses de couette - Taies - Kit draps de bain - Tapis de bain - Torchons - Menage fin de sejour) Pack Vacances (Draps - Housses de couette - Taies - Kit draps de bain - Tapis de bain - Torchons - Menage fin de sejour)
Kit Bébé Kit Bébé
Lits faits à l’arrivée Lits faits à l’arrivée
Désinfection Désinfection

Équipements

Lave-vaisselle
Télévision
Micro-ondes
+ Plus d'équipements
Barbecue
Four
Lave-linge
Sèche-linge
Internet WIFI
Hi-Fi
Récepteur satellite
Appareil à raclette
Service à fondue
Radio
Congélateur
Laverie

Autres

+ Plus de services
Animaux acceptés Animaux acceptés
Petits animaux acceptés (chats et chiens) Petits animaux acceptés (chats et chiens)
Location non fumeur Location non fumeur
Accès pour personnes à mobilité réduite Accès pour personnes à mobilité réduite

Lisa DES BELLEVILLE

Type de propriétaire : Agence immobilière
Inscrit depuis le 25.09.2020

Ce loueur parle :

Loueur de confiance

Chèques vacances refusés


Localiser le logement

Infos stations

Station principale: Les Menuires

Distance station : NC
Distance remontées : à proximité
En savoir plus sur : station Les Menuires

Domaine(s) skiable(s) relié(s)


Domaine : Les 3 Vallées ( Courchevel La Tania , Les Menuires , Méribel (centre) , Orelle , Saint Leger Les Melezes , Val Thorens , Brides les bains , Méribel Mottaret , Méribel Village , Méribel Les Allues , )