FUN
Neige
www.defi-vacances.fr Code Promo : CM14
Vos coups de coeurs

Les coups de cœur correspondent à des locations que vous mettez en favoris.
Pour en ajouter, cliquer sur le cœur gris en haut à droite des locations.
Pour en enlever, re-cliquer sur le cœur de cette même location qui sera orange.

Fermer

Location Studio en résidence Gentianes

  • 45 m2

  • 6 personnes

  • 25/01/2026

À propos

Belle résidence skis aux pieds

La résidence Gentianes est située place des Bouquetins, à 20m des pistes.

Une passerelle piétonne face à la résidence permet de rejoindre le quartier des Bruyères où se trouvent restaurants, commerces, office de tourisme, espace aqualudique et wellness, cinéma, luge sur rail, école de ski, jardin d'enfants.
Le quartier de la Croisette est à 15 minutes de marche par un sentier pieton.
C'est une résidence avec ascenseur, digicode et gardien.
WiFi gratuit dans les appartements (sous réserve de couverture du réseau).

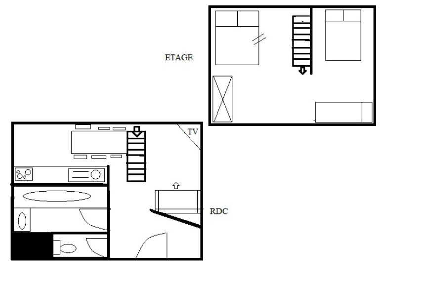
Appartement avec mezzanine de 45 m² pour 6 personnes.
Il est situé au 5ème étage avec un balcon exposé Nord.

Label : 2 flocons Argent

Séjour : 1 canapé-lit 2 personnes. Equipé d'une télévision.
Mezzanine : 2 lits 2 personnes superposés, 1 lit 1 personne et 1 lit 2 personnes.

Cuisine équipée de réfrigérateur, 4 plaques électriques, four micro-ondes grill, lave-vaisselle, bouilloire, grille-pain et cafetière.

Salle de bains avec baignoire.
WC indépendant.

Sol moquette.

Appartement non fumeur.
Animaux non admis.
Appartement équipé de couvertures

WIFI privatif gratuit dans l'appartement.
Le couchage en hauteur ne convient pas aux enfants de moins de 6 ans.


Classement ministériel : 2 Etoiles

Chargement des résultats

Tarifs & Planning de cette location

(Date de dernière mise à jour : 25/01/2026)

Libre

Non disponible

Promotion de dernière minute

Mars
2026
Lun Mar Mer Jeu Ven Sam Dim
23 24 25 26 27 28
1
2
3
4
5
6
7
8
9
10
11
12
13
14
15
16
17
18
19
20
21
22
23
24
25
26
27
28
29
30
31
1 2 3 4 5
Avril
2026
Lun Mar Mer Jeu Ven Sam Dim
30 31
1
2
3
4
5
6
7
8
9
10
11
12
13
14
15
16
17
18
19
20
21
22
23
24
25
26
27
28
29
30
1 2 3
Mai
2026
Lun Mar Mer Jeu Ven Sam Dim
27 28 29 30
1
2
3
4
5
6
7
8
9
10
11
12
13
14
15
16
17
18
19
20
21
22
23
24
25
26
27
28
29
30
31

Informations complémentaires

Heure de départ en fin de séjour : 10h00

Heure d'arrivée en début de séjour : 16h00

Caution / Dépôt de garantie : 400 €

Montant des charges : Incluses

Taxe de séjour : En sus Infos

Commune : NC

Annulation

Conditions d'annulation : NC
Délais d'annulation : NC

Le logement

Type de logement : Studio en résidence
Surface : 45 m²
Étage : 5eme
Capacité maximale : 6
Chambres : 1
Lit(s) simple : 1
Lit(s) double : 4
Canapé(s) lit :
Salle(s) de bain : 1 + infos
Sanitaire(s) : 1 + infos

Prestations

Balcon Balcon
Ascenseur Ascenseur
+ Plus de prestations
Cheminée Cheminée
Sauna et/ou Jacuzzi et/ou Hammam Sauna et/ou Jacuzzi et/ou Hammam
Poêle à bois Poêle à bois
Poêle à Fioul Poêle à Fioul
Garage Garage
Jeux enfants Jeux enfants
Jardin Jardin
Parking privé Parking privé
Piscine Piscine
Chauffage électrique Chauffage électrique
Chauffage central Chauffage central
Chauffage à bois Chauffage à bois
Climatisation Climatisation
Local à skis Local à skis
Terrasse Terrasse
Cave Cave
Station de charge (véhicule) Station de charge (véhicule)
Piscine chauffée Piscine chauffée

Services

+ Plus de services
Draps fournis Draps fournis
Linge de maison fourni Linge de maison fourni
Ménage Ménage
Petit déjeuner Petit déjeuner
Déjeuner Déjeuner
Diner Diner
Bois de chauffage Bois de chauffage
Demi-pension Demi-pension
Pack Vacances (Draps - Housses de couette - Taies - Kit draps de bain - Tapis de bain - Torchons - Menage fin de sejour) Pack Vacances (Draps - Housses de couette - Taies - Kit draps de bain - Tapis de bain - Torchons - Menage fin de sejour)
Kit Bébé Kit Bébé
Lits faits à l’arrivée Lits faits à l’arrivée
Désinfection Désinfection

Équipements

Lave-vaisselle
Télévision
Micro-ondes
Internet WIFI
+ Plus d'équipements
Barbecue
Four
Lave-linge
Sèche-linge
Hi-Fi
Récepteur satellite
Appareil à raclette
Service à fondue
Radio
Congélateur
Laverie

Autres

+ Plus de services
Animaux acceptés Animaux acceptés
Petits animaux acceptés (chats et chiens) Petits animaux acceptés (chats et chiens)
Location non fumeur Location non fumeur
Accès pour personnes à mobilité réduite Accès pour personnes à mobilité réduite

Lisa DES BELLEVILLE

Type de propriétaire : Agence immobilière
Inscrit depuis le 25.09.2020

Ce loueur parle :

Loueur de confiance

Chèques vacances refusés


Localiser le logement

Infos stations

Station principale: Les Menuires

Distance station : NC
Distance remontées : à proximité
En savoir plus sur : station Les Menuires

Domaine(s) skiable(s) relié(s)


Domaine : Les 3 Vallées ( Courchevel La Tania , Les Menuires , Méribel (centre) , Orelle , Saint Leger Les Melezes , Val Thorens , Brides les bains , Méribel Mottaret , Méribel Village , Méribel Les Allues , )