FUN
Neige
www.defi-vacances.fr Code Promo : CM14
Vos coups de coeurs

Les coups de cœur correspondent à des locations que vous mettez en favoris.
Pour en ajouter, cliquer sur le cœur gris en haut à droite des locations.
Pour en enlever, re-cliquer sur le cœur de cette même location qui sera orange.

Fermer

Location Chalet individuel Chalet authentique , 4 parkings, vue magique

  • 250 m2

  • 15 personnes

  • 17/01/2026

À propos

Du DIMANCHE au DIMANCHE
Location jusqu'à 18 personnes (nous consulter pour plus de 15 personnes à dormir dans le chalet)
TARIF POUR 15 PERSONNES HORS TAXES DE SEJOUR et HORS MENAGE

le prix comprend linge de lit et serviettes, lits fait avant votre arrivée

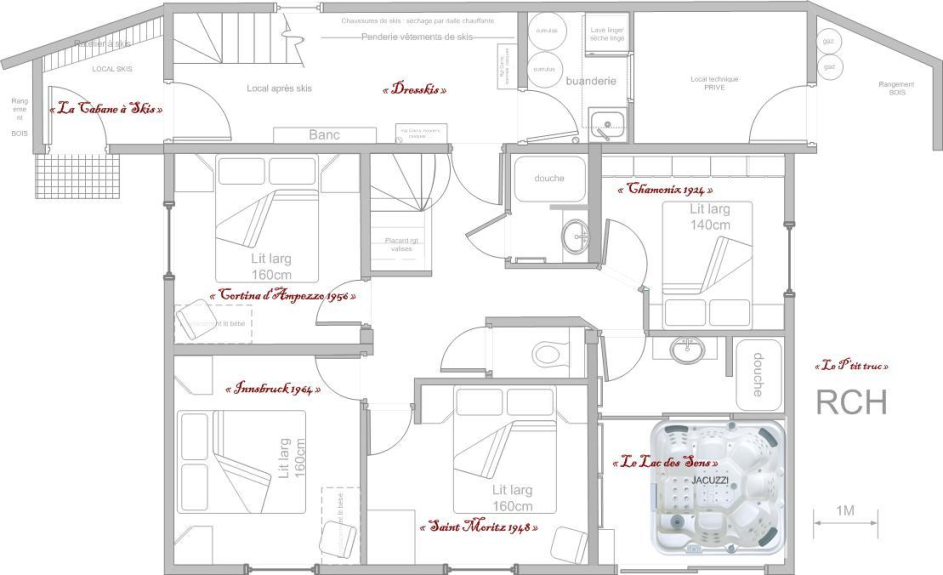
Station de La Toussuire, domaine des Sybelles, idéalement situé, à 10mn à pied du centre de la station et à 5mn des premiers commerces, Chalet de 220 m2 sur 1080 m2 de terrain, vue panoramique imprenable!!
RDC : 4 chambres lit double, 2 salles de douche, local skis, dressing ski, buanderie
Etage : pièce à vivre de 70 m2, avec cheminée donnant sur terrasse 20 m2 plein sud, cuisine équipée (3 machines a café : à filtre numéro 4; Nespresso; Senseo), salon, chambre de service avec salle de bains et WC (1 clic clac), WC indépendant, mezzanine lit simple
2ème étage : dortoir 7 couchages, salon tv enfant(1 clic clac) salle d'eau et sanitaire

SPA en option 400,00€/semaine

Forfait nettoyage (400,00€) obligatoire Paiement à l'arrivée

Bois pour la cheminée et charges eau, gaz, gaz pour barbecue inclus dans le prix

Chargement des résultats

Tarifs & Planning de cette location

(Date de dernière mise à jour : 17/01/2026)

Libre

Non disponible

Promotion de dernière minute

Mars
2026
Lun Mar Mer Jeu Ven Sam Dim
23 24 25 26 27 28
1
2
3
4
5
6
7
8
9
10
11
12
13
14
15
16
17
18
19
20
21
22
23
24
25
26
27
28
29
30
31
1 2 3 4 5
Tarifs pour la semaine
  • 29/03 au 05/04
    4000€ /7 nuit(s)
Avril
2026
Lun Mar Mer Jeu Ven Sam Dim
30 31
1
2
3
4
5
6
7
8
9
10
11
12
13
14
15
16
17
18
19
20
21
22
23
24
25
26
27
28
29
30
1 2 3
Tarifs pour la semaine
  • 28/03 au 04/04
    3800€ /7 nuit(s)
  • 29/03 au 05/04
    4000€ /7 nuit(s)
  • 04/04 au 11/04
    3200€ /7 nuit(s)
  • 05/04 au 12/04
    4000€ /7 nuit(s)
  • 11/04 au 18/04
    3200€ /7 nuit(s)
  • 12/04 au 19/04
    4000€ /7 nuit(s)
  • 18/04 au 25/04
    3200€ /7 nuit(s)
  • 19/04 au 26/04
    4000€ /7 nuit(s)
  • 25/04 au 02/05
    3200€ /7 nuit(s)
  • 26/04 au 03/05
    4000€ /7 nuit(s)
Mai
2026
Lun Mar Mer Jeu Ven Sam Dim
27 28 29 30
1
2
3
4
5
6
7
8
9
10
11
12
13
14
15
16
17
18
19
20
21
22
23
24
25
26
27
28
29
30
31
Tarifs pour la semaine
  • 25/04 au 02/05
    3200€ /7 nuit(s)
  • 26/04 au 03/05
    4000€ /7 nuit(s)
  • 02/05 au 09/05
    3000€ /7 nuit(s)
  • 03/05 au 10/05
    4000€ /7 nuit(s)
  • 09/05 au 16/05
    3000€ /7 nuit(s)
  • 10/05 au 17/05
    4000€ /7 nuit(s)
  • 16/05 au 23/05
    3000€ /7 nuit(s)
  • 17/05 au 24/05
    4000€ /7 nuit(s)
  • 23/05 au 30/05
    3000€ /7 nuit(s)
  • 24/05 au 31/05
    4000€ /7 nuit(s)
  • 30/05 au 06/06
    3000€ /7 nuit(s)
  • 31/05 au 07/06
    4000€ /7 nuit(s)

Informations complémentaires

Heure de départ en fin de séjour : 10h00

Heure d'arrivée en début de séjour : 17h00

Pourcentage d'acompte ou d'arrhes : 30%

Caution / Dépôt de garantie : 1500 €

Location du dimanche au dimanche : Oui

Montant des charges : Incluses

Taxe de séjour : En sus Infos

Commune : FONTCOUVERTE LA TOUSSUIRE

Annulation

Conditions d'annulation : Annulation standard (Conformément au contrat ou a default dans le respect des lois en vigueurs) en respectant le délai d’annulation.
Délais d'annulation : 60 jour(s)

Le logement

Type de logement : Chalet individuel
Surface : 250 m²
Étage : RDC + 2 étage
Capacité maximale : 15
Capacité confort : 15
Chambres : 7
Lit(s) simple : 14
Lit(s) double : 8
Canapé(s) lit : 0
Salle(s) de bain : 4 + infos
Sanitaire(s) : 4 + infos

Prestations

Cheminée Cheminée
Sauna et/ou Jacuzzi et/ou Hammam Sauna et/ou Jacuzzi et/ou Hammam (Privé(e)) (400€)
Jardin Jardin (Privé(e))
Parking privé Parking privé (Privé(e))
Chauffage électrique Chauffage électrique
Chauffage à bois Chauffage à bois
Local à skis Local à skis (Privé(e))
Balcon Balcon (Privé(e))
Terrasse Terrasse (Privé(e))
+ Plus de prestations
Poêle à bois Poêle à bois
Poêle à Fioul Poêle à Fioul
Garage Garage
Jeux enfants Jeux enfants
Piscine Piscine
Chauffage central Chauffage central
Climatisation Climatisation
Cave Cave
Ascenseur Ascenseur
Station de charge (véhicule) Station de charge (véhicule)
Piscine chauffée Piscine chauffée

Services

Draps fournis Draps fournis
Linge de maison fourni Linge de maison fourni
Ménage Ménage (400€)
Bois de chauffage Bois de chauffage
Kit Bébé Kit Bébé (Privé(e))
Lits faits à l’arrivée Lits faits à l’arrivée
+ Plus de services
Petit déjeuner Petit déjeuner
Déjeuner Déjeuner
Diner Diner
Demi-pension Demi-pension
Pack Vacances (Draps - Housses de couette - Taies - Kit draps de bain - Tapis de bain - Torchons - Menage fin de sejour) Pack Vacances (Draps - Housses de couette - Taies - Kit draps de bain - Tapis de bain - Torchons - Menage fin de sejour)
Désinfection Désinfection

Équipements

Barbecue (Privé(e))
Four
Lave-linge (Privé(e))
Lave-vaisselle
Télévision (Privé(e))
Micro-ondes
Sèche-linge (Privé(e))
Internet WIFI (Privé(e))
Récepteur satellite (Privé(e))
Appareil à raclette (Privé(e))
Service à fondue (Privé(e))
Congélateur
+ Plus d'équipements
Hi-Fi
Radio
Laverie

Autres

Animaux acceptés Animaux acceptés (100€)
Petits animaux acceptés (chats et chiens) Petits animaux acceptés (chats et chiens) (100€)
Location non fumeur Location non fumeur
+ Plus de services
Accès pour personnes à mobilité réduite Accès pour personnes à mobilité réduite

Arthur B

Type de propriétaire : Loueur particulier
Inscrit depuis le 16.11.2006

Ce loueur parle :

Loueur de confiance

Chèques vacances refusés


Localiser le logement

Télétravail

Débits internet :
donwload Téléchargement : 504 Mbps.
upload Transfer : 347 Mbps.
Opérateur GSM : Bouygue
Réception : nc
Réseaux :
Opérateur GSM : Free
Réception : nc
Réseaux :
Opérateur GSM : Orange
Réception : nc
Réseaux :
Opérateur GSM : Sfr
Réception : nc
Réseaux :

Infos stations

Station principale: La Toussuire

Distance station : moins de 1km
Distance remontées : moins de 1km
En savoir plus sur : station La Toussuire

Domaine(s) skiable(s) relié(s)


Domaine : Sybelles ( Albiez Montrond , La Toussuire , Saint Jean D'Arves , Saint Sorlin D'arves , Saint Colomban des Villards , Le Corbier , Villard Saint Pancrace , )

Station secondaire: Le Corbier

Distance station : moins de 5 kms
Distance remontées : NC
En savoir plus sur : station Le Corbier

Domaine(s) skiable(s) relié(s)


Domaine : Sybelles ( Albiez Montrond , La Toussuire , Saint Jean D'Arves , Saint Sorlin D'arves , Saint Colomban des Villards , Le Corbier , Villard Saint Pancrace , )