FUN
Neige
www.defi-vacances.fr Code Promo : CM14
Vos coups de coeurs

Les coups de cœur correspondent à des locations que vous mettez en favoris.
Pour en ajouter, cliquer sur le cœur gris en haut à droite des locations.
Pour en enlever, re-cliquer sur le cœur de cette même location qui sera orange.

Fermer

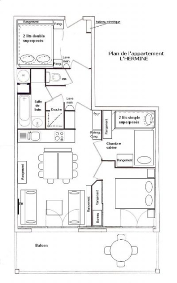
Location Appartement en résidence : pistes à 200m, tout confort. hermine

  • 60 m2

  • 8 personnes

  • 18/01/2026

À propos

Un appartement familial, proche des pistes et remontées mécaniques (à 200 mètres).
Dans station familiale et conviviale avec accès direct à un domaine skiable et remontées mécaniques de qualité (Alpe d'Huez, 250 km de pistes).

Appartement de 60m² + large balcon + casier à ski + garage...

>> Séjour 24 m² (orientation ouest) avec cuisine équipée, belle vue et accès au balcon.
• Dans la cuisine : lave vaisselle, plaque vitro-céramique, évier, hotte, four, réfrigérateur/congélateur, micro-onde, machine à café, grille-pain, cafetière, bouilloire, livre de recette, appareil à raclette, robot multifonctions, cocotte minute...
• Dans le salon, 2 canapés, une télévision, un lecteur DVD, une chaine hifi, un fer à repasser, des jeux de société, des BD, des DVD et livres...

>> 3 chambres :
• 1 chambre avec un lit double,
• 1 chambre avec 2 lits simples superposés et un clic clac,
• 1 chambre avec 2 lits doubles superposés et point d'eau.

>> 2 salles d'eau :
• 1 salle de bain avec baignoire, meuble vasque et machine à laver
• 1 douche indépendante
• 1 W-C indépendant, 2 laves mains indépendants

>> Balcon de 14m² avec salon de jardin

>> Possibilité de Garage.

>> Nos amis les bêtes ne sont pas acceptés (sorry).

En très haute saison, nous préférons louer du dimanche au dimanche afin d'éviter les bouchons...

-20% sur locations du matériel de glisse

Chargement des résultats

Tarifs & Planning de cette location

(Date de dernière mise à jour : 18/01/2026)

Libre

Non disponible

Promotion de dernière minute

Janvier
2026
Lun Mar Mer Jeu Ven Sam Dim
29 30 31
1
2
3
4
5
6
7
8
9
10
11
12
13
14
15
16
17
18
19
20
21
22
23
24
25
26
27
28
29
30
31
1
Février
2026
Lun Mar Mer Jeu Ven Sam Dim
26 27 28 29 30 31
1
2
3
4
5
6
7
8
9
10
11
12
13
14
15
16
17
18
19
20
21
22
23
24
25
26
27
28
1
Mars
2026
Lun Mar Mer Jeu Ven Sam Dim
23 24 25 26 27 28
1
2
3
4
5
6
7
8
9
10
11
12
13
14
15
16
17
18
19
20
21
22
23
24
25
26
27
28
29
30
31
1 2 3 4 5

Informations complémentaires

Heure de départ en fin de séjour : 12h00

Heure d'arrivée en début de séjour : 14h00

Pourcentage d'acompte ou d'arrhes : 25%

Caution / Dépôt de garantie : 500 €

Location du dimanche au dimanche : Oui certaines semaines

Montant des charges : Incluses

Taxe de séjour : Incluses

Commune : OZ

Annulation

Conditions d'annulation : Annulation souple sur simple demande en respectant le délai d’annulation.
Délais d'annulation : 30 jour(s)

Le logement

Type de logement : Appartement en résidence
Surface : 60 m²
Étage : 1er
Capacité maximale : 8
Capacité confort : 7
Chambres : 3
Lit(s) simple : 3
Lit(s) double : 3
Canapé(s) lit : 0
Salle(s) de bain : 2 + infos
Sanitaire(s) : 1 + infos

Prestations

Garage Garage (Privé(e))
Jeux enfants Jeux enfants (Privé(e))
Chauffage électrique Chauffage électrique
Chauffage central Chauffage central
Local à skis Local à skis (Privé(e))
Balcon Balcon (Privé(e))
Ascenseur Ascenseur
+ Plus de prestations
Cheminée Cheminée
Sauna et/ou Jacuzzi et/ou Hammam Sauna et/ou Jacuzzi et/ou Hammam
Poêle à bois Poêle à bois
Poêle à Fioul Poêle à Fioul
Jardin Jardin
Parking privé Parking privé
Piscine Piscine
Chauffage à bois Chauffage à bois
Climatisation Climatisation
Terrasse Terrasse
Cave Cave
Station de charge (véhicule) Station de charge (véhicule)
Piscine chauffée Piscine chauffée

Services

Kit Bébé Kit Bébé
+ Plus de services
Draps fournis Draps fournis
Linge de maison fourni Linge de maison fourni
Ménage Ménage
Petit déjeuner Petit déjeuner
Déjeuner Déjeuner
Diner Diner
Bois de chauffage Bois de chauffage
Demi-pension Demi-pension
Pack Vacances (Draps - Housses de couette - Taies - Kit draps de bain - Tapis de bain - Torchons - Menage fin de sejour) Pack Vacances (Draps - Housses de couette - Taies - Kit draps de bain - Tapis de bain - Torchons - Menage fin de sejour)
Lits faits à l’arrivée Lits faits à l’arrivée
Désinfection Désinfection

Équipements

Four
Lave-linge
Lave-vaisselle
Télévision
Micro-ondes
Hi-Fi
Appareil à raclette
Service à fondue
Radio
Congélateur
+ Plus d'équipements
Barbecue
Sèche-linge
Internet WIFI
Récepteur satellite
Laverie

Autres

Location non fumeur Location non fumeur
+ Plus de services
Animaux acceptés Animaux acceptés
Petits animaux acceptés (chats et chiens) Petits animaux acceptés (chats et chiens)
Accès pour personnes à mobilité réduite Accès pour personnes à mobilité réduite

Fabien G.

Type de propriétaire : Loueur particulier
Inscrit depuis le 05.10.2002

Ce loueur parle :

Loueur de confiance

Chèques vacances acceptés


Localiser le logement

Infos stations

Station principale: Oz en Oisans

Distance station : à proximité
Distance remontées : à proximité
En savoir plus sur : station Oz en Oisans

Domaine(s) skiable(s) relié(s)


Domaine : Alpe d'Huez grand domaine Ski ( Alpe D'huez , Alpe Du Grand Serre , Vaujany , Oz en Oisans , Auris en Oisans , Villard-Reculas , )

Station secondaire: Alpe D'huez

Distance station : moins de 2 kms
Distance remontées : à proximité
En savoir plus sur : station Alpe D'huez

Domaine(s) skiable(s) relié(s)


Domaine : Alpe d'Huez grand domaine Ski ( Alpe D'huez , Alpe Du Grand Serre , Vaujany , Oz en Oisans , Auris en Oisans , Villard-Reculas , )